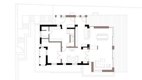
M11 | Denkmalgeschützte Villa
Ein privater Bauherr möchte eine Villa mit Ensembleschutz aus dem frühen 20. Jahrhundert sanieren, modernisieren und erweitern. Entstanden sind dabei ein liebevoll restauriertes Haus mit einem modernen Anbau, der sich bewusst vom Altbau absetzt. Von außen bleibt die bestehende Villa in ihrem Charakter unverändert. Die Fassaden werden nach altem Vorbild in enger Abstimmung mit dem Denkmalschutz rückgebaut und saniert. Die neue Raumaufteilung und die Gestaltung der neuen Einbauten im Inneren folgen in ihrer Logik und Formensprache den Anforderungen der heutigen Zeit. Das energetische Konzept mit Nutzung von Erdwärme entspricht dem modernsten technischen Standard und ist wegweisend im Sinne der Nachhaltigkeit.
Fotografie: Sabrina Romahn
Visualisierung: ox.11







